1/6
ขายที่ดิน นาดี-สมุทรสาคร
โพสต์เมื่อ 6 ปีที่แล้ว
ข้อมูลสินค้า
รายละเอียด
ขายที่ดินเปล่า พื้้นที่ 100 ตารางวา (พื้นที่สีชมพู) อยู่ซอยทวีสุข(ซอยเจ้าแม่กวนอิม) ถนนเศรษฐกิจ 1 ต.นาดี อ.เมืองสมุทรสาคร จ.สมุทรสาคร ใกล้บิ๊กซี โลตัส มหาชัย ใกล้แหล่งชุมชน เหมาะสำหรับปลูกบ้าน, ทำห้องเช่า, ทำโกดัง ราคาขาย 11,000 บาท / ตร.วา(ขายต่ำกว่าราคาประเมิน) สนใจสามารถต่อรองราคาได้ เจ้าของขายเอง งดหนายหน้าทุกกรณี ค่าพิกัดแปลง ละติจูด : 13.5821212126521 ลองติจูด : 100.2809253924
1,100,000 บาท
ผ่อน 4,727 บาทต่อเดือน
สถานที่ตั้ง
ขยายแผนที่
คำนวณสินเชื่อ
ราคา:
เงินดาวน์:
อัตราดอกเบี้ย (%):
ระยะเวลา (ปี):
ผลการคำนวณเงินผ่อน
ค่าผ่อนรายเดือน
4,727
บาท/เดือน
ผลการคำนวณเงินผ่อน
เงินต้น:
ดอกเบี้ยรวม:
ยอดรวม:
*คำนวณแบบดอกเบี้ยลดต้นลดดอก
สินค้าใกล้เคียง
1 / 12
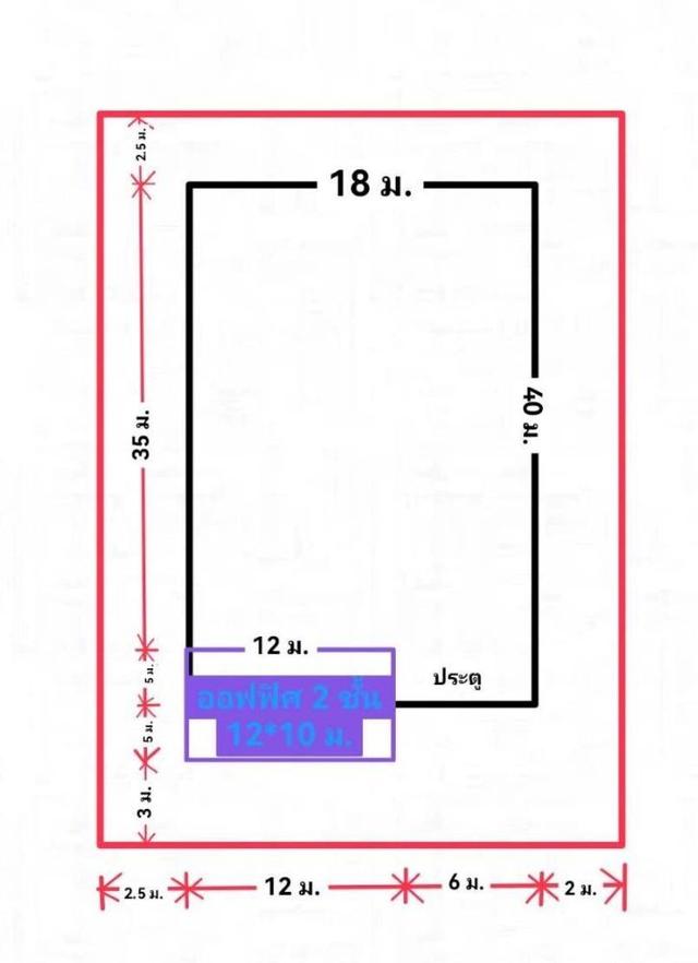
ขาย/ให้เช่า โรงงาน โกดัง ออฟฟิศ2ชั้น ขนาด280 ตร.ว ซอยราษฎร์สามัคคี ต. นาดี สมุทรสาคร
฿15,900,000
1
ห้องน้ำ
1
ที่จอด
1250
ตรม.
1 / 12
ให้เช่าหรือขาย โรงงาน โกดัง คลังสินค้า พร้อมออฟฟิศ 2 ชั้น ขนาด 280 ตร.ว. ซอยราษฎร์สามัคคี นาดี สมุทรสาคร
฿99,000/เดือน
1
ห้องน้ำ
1
ที่จอด
1250
ตรม.
1 / 10
ให้เช่าโรงงาน โกดัง แถวแคราย คลองมะเดื่อ นาดี บางน้ำจืด สมุทรสาคร
฿10,000/เดือน
1
ห้องน้ำ
1
ที่จอด
100
ตรม.

















































































